COLLEGE SAINT BRUNO MARSEILLE
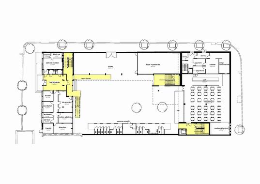
Le programme est complet : il vise à restructurer l’ensemble de l’établissement poure le mettre au niveau de toutes les réglementations et programmes quantitatifs de référence actuel pour les collèges. On ne perdra donc pas de vue que le collège actuel a des vertus fonctionnelles qui, si elles ne « collent » pas forcément toutes au programme théorique peuvent continuer à fonctionner : c’est l’approche réaliste de la question posée. L’OGEC de Saint Bruno La Salle doit engager l’établissement au moins pour les vingt prochaines années dans des choix raisonnés et raisonnables : c’est la base de notre approche.
CONCOURS JUILLET 2014
OGEC ST BRUNO
BET : ARTELIA
Surf HO : 5 000 m2
Coût : 5 400 000€ HT









